The project of the Wright house was originally planned for a fixed budget of a turnkey house, this is a rather difficult task, since already at the design stage all estimate calculations for the purchase of all building and finishing materials, the manufacture of furniture, the installation of windows, all types of construction and repair and finishing works have been completed.
Wright House

Wright House is an exclusive complex house project. Design and architecture.
A comprehensive project for an energy efficient home, which includes:
- Interior design / visualizations / specification of all finishing materials, equipment and furniture
- Architectural design with loads
- Facade design
- Recuperative ventilation / underfloor heating engineering projects
- The most modern solutions and units of energy efficient construction have been applied

Home interior design
Common space, nothing superfluous, everything speaks of freedom and at the same time about discipline and restraint. Open space, consisting of a living room, kitchen and dining area.
The interior has a relaxed mood and provides space for reflection and relaxation. Only the best in the project, the latest models of furniture, lighting and finishing materials. The combination of raw wood, white and graphite walls, soft stucco textures and glass stair railings create an impressive contrast. The kitchen looks fundamental with crisp shapes and contrasts: white, black and wood.
The entire second floor is a private area with a master bedroom with a personal dressing room and a bathroom.
Two children's rooms for which a bathroom with a large bathtub is also allocated.
Architectural design of the cottage
The development of the architectural part was carried out in parallel with the interior, which made it possible to immediately make corrections at the early stages of the project and get a comfortable house, with an ideal layout and dimensions for the owners.

Underfloor heating design
Any engineering solution requires design work, otherwise it will be expensive, poor quality and long. All types of engineering work have been performed in the Wright project, including the installation of warm floors, planning of temperature regimes, comfort zones, etc.
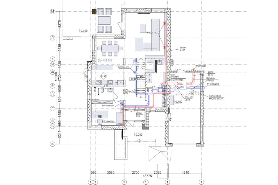
Recovery ventilation system

A project has been developed for energy-saving ventilation with energy recovery, in simple words, this is air conditioning and heating, which is 3-4 times more economical and at the same time uses clean air from the street, and not stale room air, as in traditional systems.








