Современности дому прибавляет скрытый водосток. Нет никаких труб на фасаде. Ограждающие конструкции здания визуально "выступают" из общего объёма, и за счет этого появилась большая терраса, обшитая деревом и крыльцо. Во внешнем виде дома не обошлось и без изюминок: на одной из стен мы сделали геометрическую композицию, которая освещается в ночное время.
Twins

Услуга:
Passive House
Архитектор: Анастасия Броварник
Дизайнер: Лисовская Анастасия
Общая площадь: 138,6 кв.м.
Дата: 2022-01-20
Локация: Хотяновка, Киевская область
Жилая площадь: 74,7 кв.м.
Кол-во комнат: 3
Гараж: нет
Название проекта мы выбрали не случайно. Все дело в том, что на двух соседних участках мы спроектировали два одинаковых дома для двух семей. Нет нам не было лень делать новый проект, просто клиенты дружат семьями и это их желание, которое мы с удовольствием воплотили в жизнь.
На данный момент проект на стадии проведения отделочных работ.
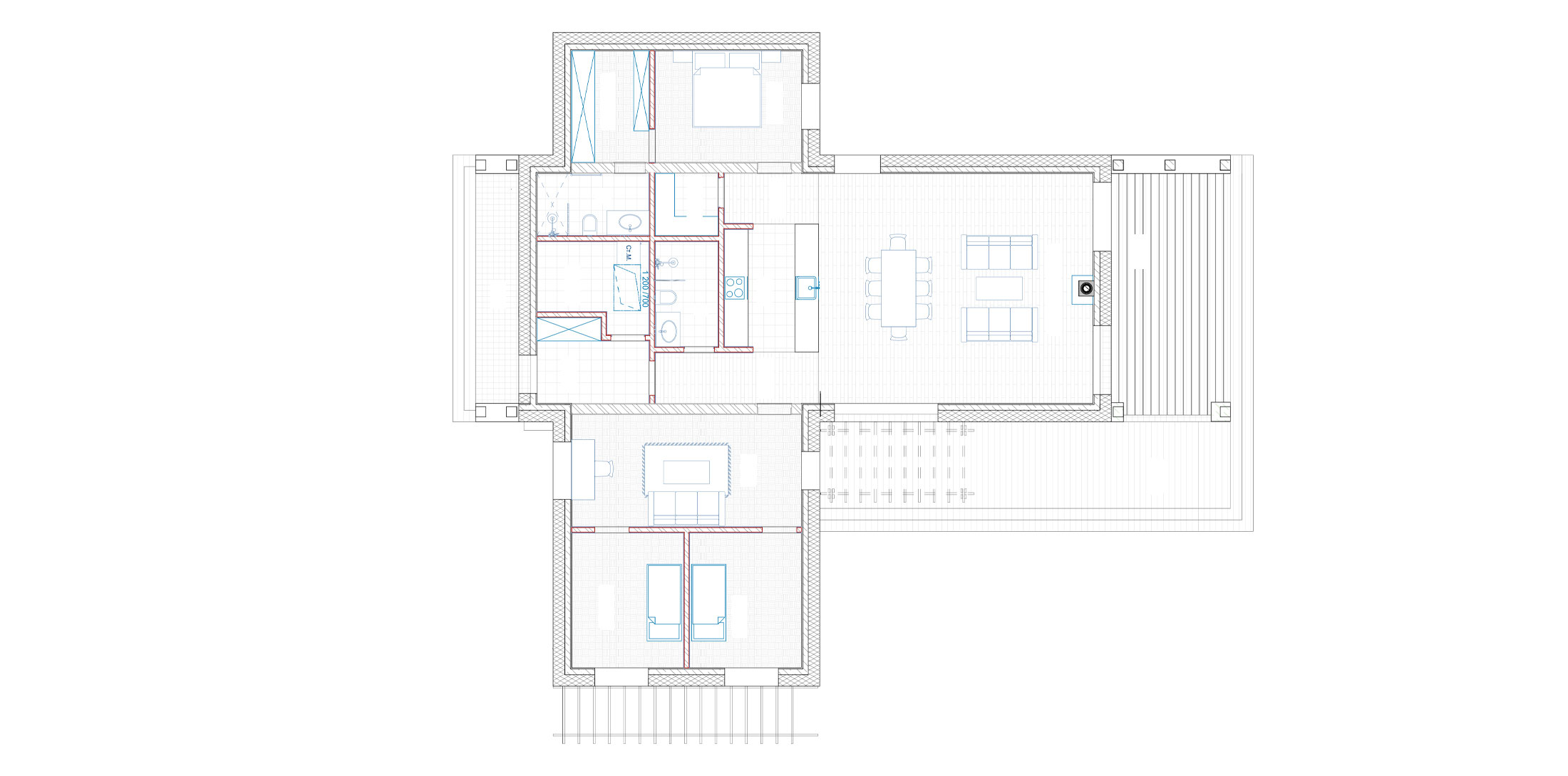
Одноэтажные загородные дом в стиле "Барнхаус" лаконичны и отличаются простотой. Дом спроектирован для семьи из четырех человек и визуально разделен на два взаимно перпендикулярных блока. Каждый блок имеет два острых ската. Покрытие кровли заворачивается частично на стену, нет никаких свесов, тем самым появляется ощущение что стены и кровля — это единое целое.

Дом можно разделить на три основных зоны: центральная и боковые, которые включают в себя хозяйскую спальню и детскую. Центральный блок включает в себя большую кухню-гостиную с камином. Подшитые потолки под угол скоса скатов увеличивают пространство, делают его более объёмным, а панорамные окна прибавляют комфорта и ощущения единения с природой.
По обе стороны кухонного блока есть выходы в зону входной группы и спальные зоны.
Хозяйская спальня с собственным санузлом и гардеробной находится в отдельном крыле и полностью изолирована.
Детские спальни с игровой расположены в противоположном крыле. Дети могут находиться как в своей комнате, так и в общей игровой. Из игровой есть выход на чердачное помещение. Этот "секретный ход" будет прекрасным местом времяпровождения для детей. Мансардное окно будет давать достаточно много дневного света и свежего воздуха в течении дня.
Общий санузел расположен в центре дома и доступен из любой точки. А возле входной группы с гардеробом для верхней одежды располагается техпомещение с новейшими инженерными решениями.
Чердачное пространство дома нежилое, за исключением комнаты для детей. Используется для проведения инженерных коммуникаций.








Дизайн-проект

Данный дизайн-проект мы разрабатывали с учетом максимального сохранения пространства. Кухня-гостиная функциональна, выполнена в современном стиле с яркими акцентами в мебели и декоре.















