Melbourne

Послуга:
Passive House
Архітектор: Анастасія Броварник
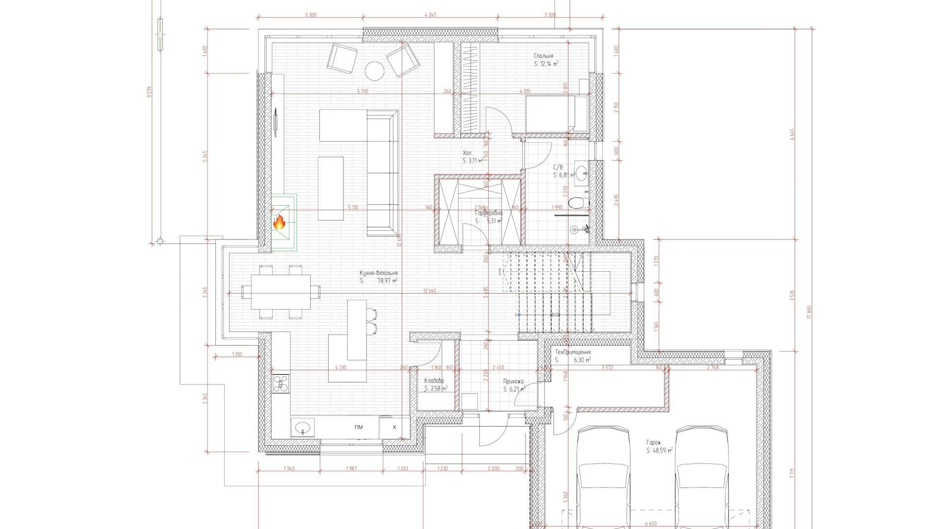
Загальна площа: 270 кв.м.
Дата: 2022-01-07
Місце: с. Івнковичі, Київська область
Житлова площа: 148,3 кв.м.
Кілкість кімнат: 4
Гараж: є
Двоповерховий будинок із плоскою покрівлею проектувався для котеджного містечка із суворим дотриманням усіх енергоефективних характеристик. Особлива увага приділена склінню. Максимальне скління виходить на південь, а кутові вікна на першому та другому поверхах отримують прямі промені західного та східного сонця. Таким чином, більшість активних зон одержують освітлення практично протягом усього світлового дня.


Ще одним вдалим рішенням став засклений еркер у зоні їдальні. Зазвичай східне сонце низьке і попри навіс під час сніданку за столом вся родина все одно отримуватиме достатньо світла.
Великі вікна в північній частині будинку також забезпечують високий коефіцієнт природного освітлення, хоч і видають трохи більше енерговтрат.
Проєктуючи будинок, не нехтуйте важливістю освітлення. Ваш будинок – ваша фортеця, і перебування в ньому має наповнювати силами для нових звершень, забезпечувати якісний відпочинок та допомагати відновлювати ресурси.
