Сучасності дому додає прихований водостік. Немає жодних труб на фасаді. Огороджувальні конструкції будівлі візуально "виступають" із загального обсягу, і за рахунок цього з'явилася велика тераса, обшита деревом та ганок. У зовнішньому вигляді будинку не обійшлося і без родзинок: на одній зі стін ми зробили геометричну композицію, яка висвітлюється в нічний час.
Twins

Послуга:
Passive House
Архітектор: Анастасія Броварник
Дизайнер: Анастасія Лісовська
Загальна площа: 138,6 кв.м.
Дата: 2020-01-01
Місце: Хотянівка, Київська область
Житлова площа: 74,7 кв.м.
Кілкість кімнат: 3
Гараж: відсутній
Назву проєкту ми обрали не випадково. Вся справа в тому, що на двох сусідніх ділянках ми спроєктували два однакових будинки для двох сімей. Ні, нам не було лінь робити новий проєкт, просто клієнти дружать сім'ями і це було їхнім бажанням, яке нам дуже сподобалося. Наразі проєкт на стадії проведення оздоблювальних робіт.
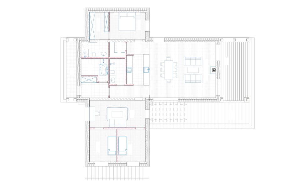
Одноповерховий заміський будинок в стилі "Барнхаус" приваблює своєю лаконічністю і простотою форм. Будинок запроєктований для сім'ї з чотирьох осіб і візуально розділений на два взаємно перпендикулярних блоки.
Традиційно кожен блок має два гострих ската. Покриття покрівлі загортається частково на стіну, немає жодних звисів, тим самим з'являється відчуття що стіни та покрівля - це єдине ціле.

Будинок можна розділити на три основні зони: центральна та бічні, які включають в себе господарську спальню та дитячу. Центральний блок включає велику кухню-вітальню з каміном. Підшиті стелі під кут скосу скатів збільшують простір, роблять його об'ємнішим, а панорамні вікна додають комфорту та відчуття єднання з природою.
По обидва боки кухонного блоку є виходи до зони вхідної групи та спальні зони.
Господарська спальня з власним санвузлом та вбиральні розташовані в окремому крилі та повністю ізольована.
Дитячі спальні з ігровою розташовані в протилежному крилі. Діти можуть бути як у своїй кімнаті, так і в загальній ігровій. З ігрової є вихід на горищне приміщення. Цей "секретний хід" буде чудовим місцем відпочинку для дітей. Мансардне вікно даватиме досить багато денного світла та свіжого повітря протягом дня.
Господарська спальня з власним санвузлом і вбиральнею розташовані в окремому крилі і повністю ізольовані. Дитячі спальні з ігровою розташовані в протилежному крилі. Діти можуть перебувати як у своїй кімнаті, так і в загальній ігровий. З ігровий є вихід на горищне приміщення. Цей "секретний хід" буде прекрасним місцем проведення часу для дітей. Мансардне вікно буде давати досить багато денного світла і свіжого повітря протягом дня.
Загальний санвузол розташований у центрі будинку та доступний з будь-якої точки. А біля вхідної групи з гардеробом для верхнього одягу розташоване техприміщення з новітніми інженерними рішеннями.
Горищний простір будинку нежитловий, за винятком кімнати для дітей. Використовується для інженерних комунікацій.








Дизайн-проєкт інтер'єру

Цей дизайн-проєкт ми розробляли з урахуванням максимального збереження простору. Кухня-вітальня функціональна, виконана в сучасному стилі з яскравими акцентами в меблів та декорі.















